Learn from the Pros
Professional Kitchen Design for DIY Homeowners in Harford County & Baltimore County Maryland
Turn your kitchen ideas into buildable plans with expert CAD drawings, realistic 3D renderings, and detailed material lists designed for confident self managed installation.
Professional Design. DIY Execution.
Turn your kitchen ideas into buildable plans with expert CAD drawings, realistic 3D renderings, and detailed material lists designed for confident self managed installation.
What You Get in Your Professional Plan
✓ 2-hour personalized design consultation
✓ Custom CAD drawings with elevations
✓ Full 3D visuals for your space
✓ Comprehensive material list
✓ Two mid project support calls
✓ Optional material sourcing support
Plan smart. Spend wisely. Remodel with confidence.
Why DIY with Kitchens Rx Exists
Homeowners in Harford County and Baltimore County want professional kitchen design without committing to a full remodel contract.
DIY with Kitchens Rx delivers the same level of planning used by professional remodelers while allowing you to manage installation on your own timeline.
This service focuses on:
✓ Accurate kitchen layouts
✓ Clear material specifications
✓ Confident purchasing decisions
This is not generic advice or templates. Every plan is custom to your home and your skill level.
Who This Service Is For
DIY with Kitchens Rx is a strong fit if you:
✓ Plan to manage your own kitchen installation
✓ Want professional plans before ordering materials
✓ Need a clear materials list without guesswork
✓ Prefer design support without full service remodeling
✓ Live in Harford County or Baltimore County Maryland
How the DIY Kitchen Design Process Works
Step 1. Schedule Your Design Consultation
We review your space, goals, budget range, and installation plan.
Step 2. Receive Your Custom Kitchen Plans
You receive CAD layouts, elevations, realistic 3D renderings, and a detailed material list tailored to your kitchen.
Step 3. Build With Confidence
Order materials, and move forward on your schedule. Optional material sourcing support is available if you want professional coordination.
What Is Included in Your Kitchen Design Package
Each design package includes:
• ✓Custom CAD floor plans and elevations
•✓ 3D renderings to visualize your space
• ✓Complete cabinet, countertop, sink, and finish specifications
•✓ Two mid project support calls
•✓ Clear documentation for installers and vendors
This level of planning helps homeowners across Maryland avoid reorders and delays.
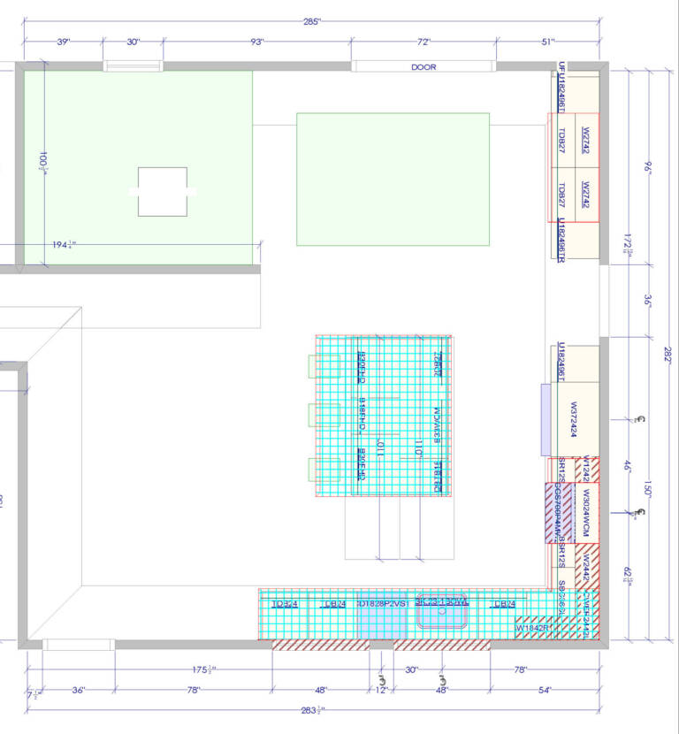
Professional Kitchen Design Examples
Explore kitchen plans created for homeowners in Harford County and Baltimore County before installation begins.
Examples include:
• CAD layouts and elevations
• 3D renderings
• Material selections and design intent
Schedule an appointment to meet or email us your questions
What Homeowners Are Saying
“The layout made better use of the space we already had. We gained functional storage, more prep space, and a smoother workflow without removing walls or expanding the scope beyond what we were comfortable managing.”
Parkton, Maryland
“The design solution was something we never would have thought of on our own. It completely changed how the kitchen functions without making the project more complicated.”
Jarrettsville, Maryland
“The material list alone was worth it. Everything was specified clearly so there was no confusion when ordering cabinets and finishes.”
Towson, Maryland
“This gave us the confidence to move forward on our own timeline. The layout was thoughtful, the renderings were accurate, and nothing felt rushed or generic.”
Fallston, Maryland
“Having professional plans changed everything. The drawings and material list made it easy to order correctly and manage our install without second guessing.”
Bel Air, Maryland
Local Kitchen Design Expertise in Maryland
DIY with Kitchens Rx serves homeowners throughout Harford County and Baltimore County Maryland, including:
Harford County
• Bel Air
• Fallston
• Forest Hill
• Jarrettsville
Baltimore County
• Towson
• Lutherville Timonium
• Parkton
• Phoenix
• Monkton
Start with a Professional Plan
DIY with Kitchens Rx is for homeowners who want expert kitchen design without a full remodel contract.
You get clear layouts, realistic visuals, and precise material guidance so you can move forward confidently and keep the scope within what you are comfortable managing.
Our role is to help you make smart decisions before you order or install. That planning reduces mistakes, saves time, and improves how your kitchen functions.
Optional material sourcing support is available if you want professional coordination. Otherwise, you move forward with a complete plan in hand.




